About
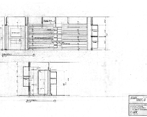
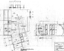
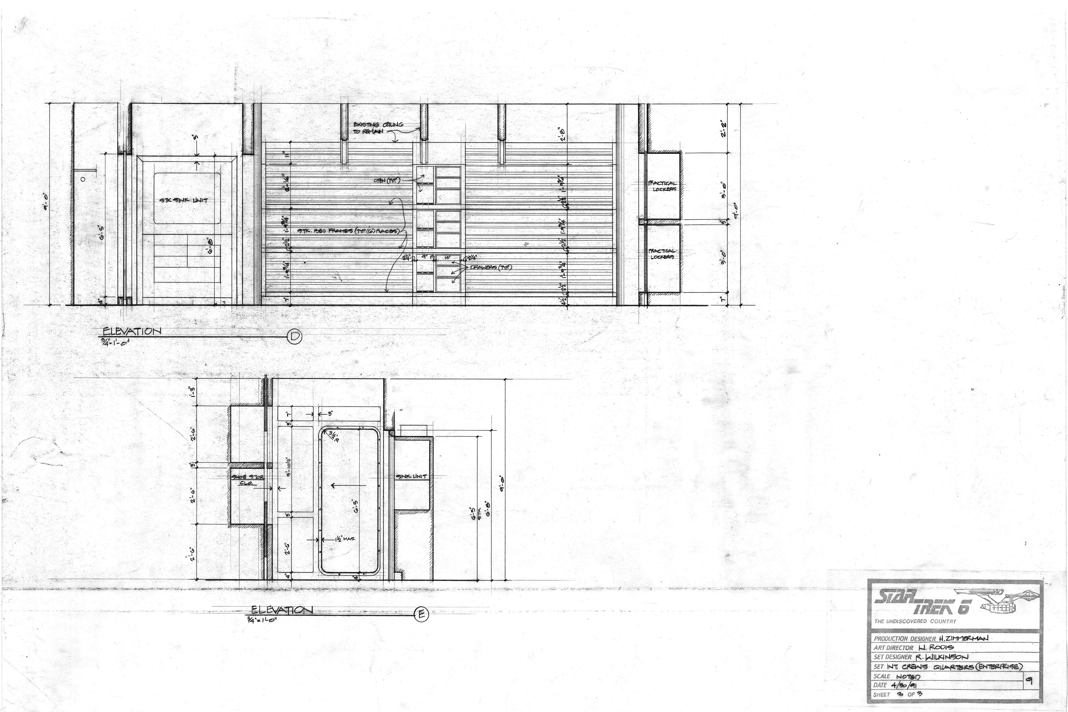
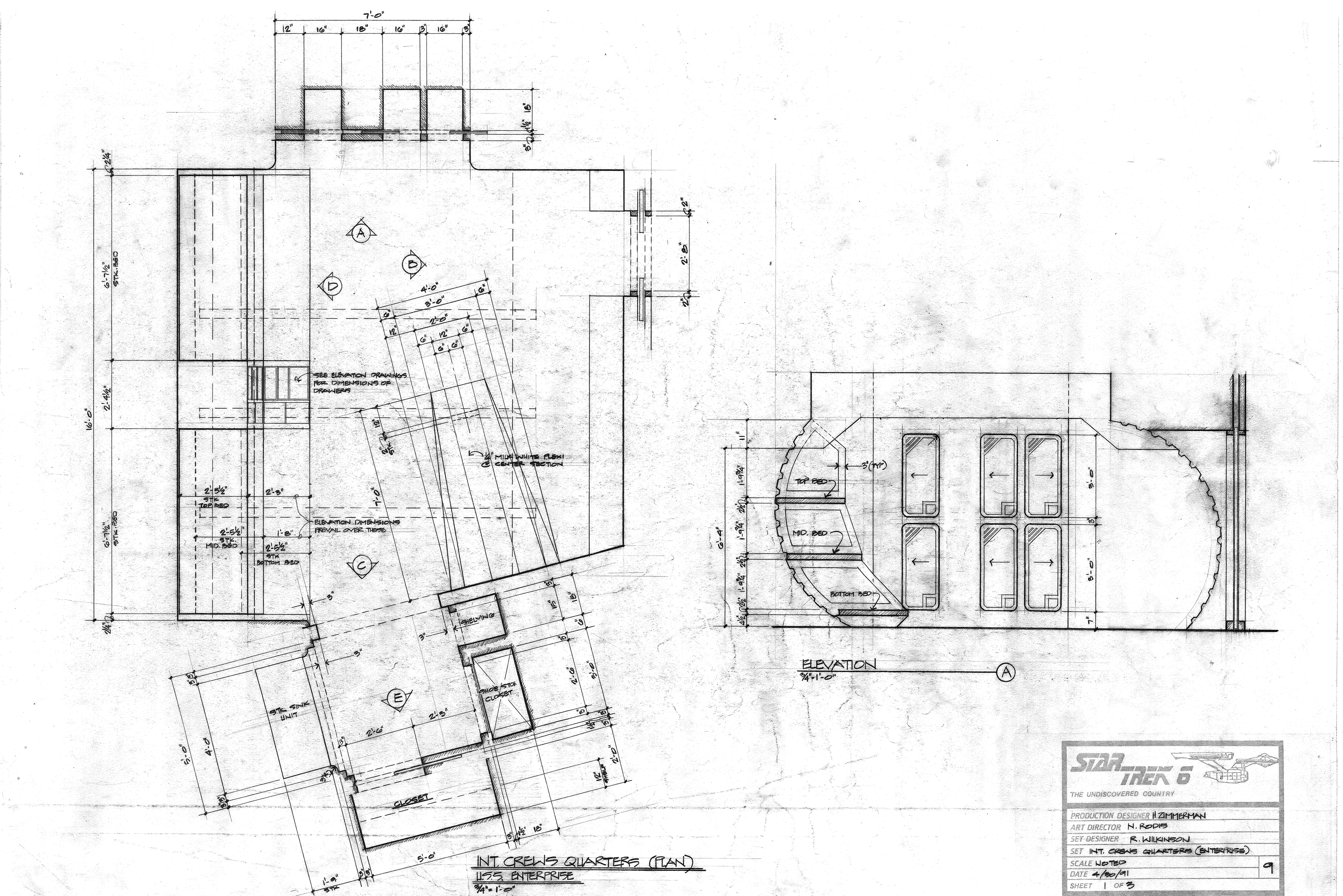
Quarters
Set Blueprint Archive run by Redgeneral
Share album
Quarters
Quarters